Les Geneveys-sur-Coffrane
Local commercial 3 pièces
2'000.00 CHF / moisAdresse
- Adresse
- Rue des Prélets 26
- NPA / Localité
- 2206 Les Geneveys-sur-Coffrane
Commentaires particuliers :
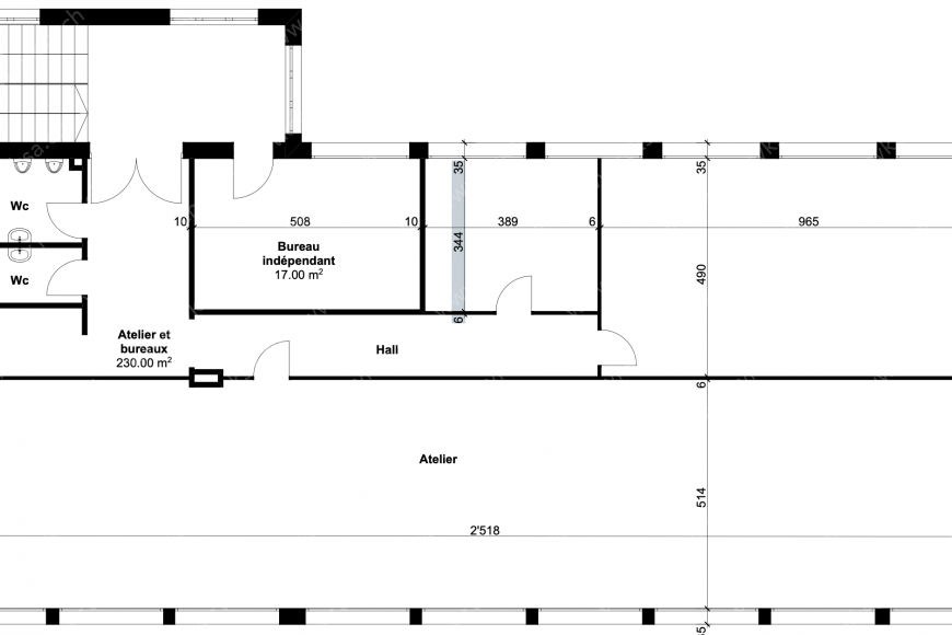
Surface commerciale de 200m2 au 1er étage, comprenant un hall d'entrée, un grand atelier de 130m2, un atelier de 47m2, un bureau de 13m2 ainsi que deux WC séparés. Possibilité de louer des places de parc.
Informations du bâtiment
- Date de construction
- 01/01/1902
Proximité
- Distance des places publiques
- 100 m
Informations de l'objet
- Désignation
- Local commercial
- Référence
- Local commercial N° 8
- Étage
- 1er étage
- Nb. de pièce(s)
- 3 pièces
- Surface
- 200.00 m2
- Loyer net mensuel
- 1'500.00 CHF
- Montant des charges mensuels
- 500.00 CHF
- Loyer charges comprises
- 2'000.00 CHF
- Disponibilité
- De suite
- Contact
- Ribaux von Kessel
Services Immobiliers SA






